
木造ウェブ
木造ウェブでは、プロ向けの構造計算のサポートを行っています。
設計事務所・工務店の皆様、お気軽にお問合せください。
無料相談実施中
営業時間 平日10時~18時
046-400-3986
事例紹介

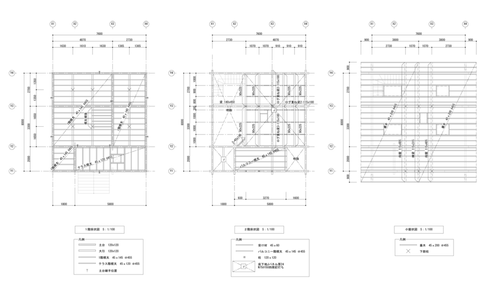
ログハウスと呼ばれ、樹皮を剥いだだけの丸太材を水平に積み重ねて壁を構成していくハンドカット工法や、工場で製材された角材や丸材を水平に積み重ねて壁を構成していくマシンカット工法があります。
壁材が交差する部分は、相互の材を交互に組み合わせていきます。材を積み重ねる際にダボやボルトを入れて耐震性を高めています。
古くは、奈良の正倉院に見られる「校倉(あぜくら)造り」や欧米諸国や山間部に建てられていたり、リゾート地に建築実績の多いログハウスですが、最近では、住宅地の建築実績も多くなっています。
設計基準の解説書としては、(一社)日本ログハウス協会から「丸太壁構法技術解説及び設計・計算例 (2003年版)」が出ています。